
Av. Fco. Lacroze 2909
"donofrio.prop@gmail.com"
011 4553-4483
Venta de Casa en Chacarita, Capital Federal
LA CASA ESTA UBICADA SOBRE LA CALLE FRAGA, ENTRE CONCEPCION ARENAL Y SANTOS DUMONT, EN UN HERMOSO ENTORNO RESIDENCIAL DEL BARRIO DE CHACARITA, DE GRAN CRECIMIENTO EN LOS ULTIMOS AÑOS, EN ZONA TRANQUILA Y CERCANA A MEDIOS DE TRANSPORTE (SUBTE - TREN - COLECTIVOS)
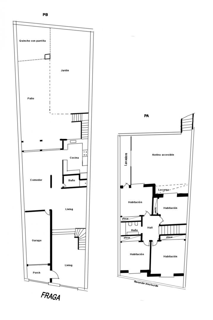
SE DISTRIBUYE EN DOS PLANTAS INGRESANDO EN PN A UN AMPLIO LIVING Y COMEDOR EN DOS NIVELES Y COMEDOR DIARIO - CON UNA AMPLIA COCINA EQUIPADA Y RECICLADA RECIENTEMENTE - CUENTA CON GARAGE AMPLIO PARA UN AUTO - CON UN BAÑO COMPLETO QUE TAMBIEN SE ENCUENTRA RECICLADO - AL CONTRAFRENTE NOS ENCONTRAMOS CON UN PATIO Y JARDIN DE APRX. 13,00 X 9,50 SUPER LUMINOSO CON SOL PRACTICAMENTE DURANTE TODO EL DIA Y UN QUINCHO AMPLIO Y EQUIPADO
EN PLANTA ALTA ENCONTRAMOS UN COMODO HALL DE DISTRIBUCION QUE NOS LLEVA A 4 DORMITORIOS MUY AMPLIOS Y CON PLACARD - 2 SE ENCUENTRAN AL FRENTE Y TIENEN SALIDA A BALCON CORRIDO A LA CALLE Y LOS OTROS DOS HACIA EL CONTRAFRENTE CON SALIDA A UNA TERRAZA DE APROX. 30M2 A NIVEL DE LA SEGUNDA PLANTA A LA CUAL SE PUEDE ACCEDER TAMBIEN DESDE EL JARDIN - EN ESTA PLANTA CUENTA TAMBIEN CON UN BAÑO COMPLETO TAMBIEN RECICLADO ADEMAS DE LAVADERO / BAULERA.
LA CONSTRUCCION ES MUY SOLIDA Y SE ENCUENTRA MUY BIEN MANTENIDA, CON SUS BAÑOS Y COCINA RECICLADOS ASI COMO SU INSTALACION ELECTRICA E INSTALACIONES DE AGUA Y GAS.
UNA CASA EN MUY BUEN ESTADO Y CONSERVACION, CON AMPLIOS AMBIENTES, LUMINOSIDAD Y SOL. EL ENTORNO ES MUY TRANQUILO, SIENDO ZONA DE PRODUCTORAS Y CONVIERTIENDOSE EN LOS ULTIMOS AÑOS EN UN POLO GASTRONOMICO.
Las medidas y superficies indicados son aproximados y solo a título informativo.
Estela DONOFRIO Propiedades - Av. Federico Lacroze 2909 CABA // Horarios de atención: Lun a Vie de 10 a 13hs y 15 a 19hs / Sab de 10 a 13hs
